WELLNESS &

DAY-SPA

HOTELLERIE &

GASTRONOMIE

HEALTH &

FITNESS

OTHER

PROJECTS

PRIVATE

HOME

START

WIR

WAS WIR TUN

PROJEKTE/REFERENZEN

KONTAKT

LA VIDA SPORTS

HEALTH & FITNESS

CLUB SELECT FITNESS WIEN

HEALTH & FITNESS

LADY FITNESS

HEALTH & FITNESS

FAMILY SPORTS

HEALTH & FITNESS

ZEN SPORTS

HEALTH & FITNESS

FIT IN

HEALTH & FITNESS

HEALTH & FITNESS

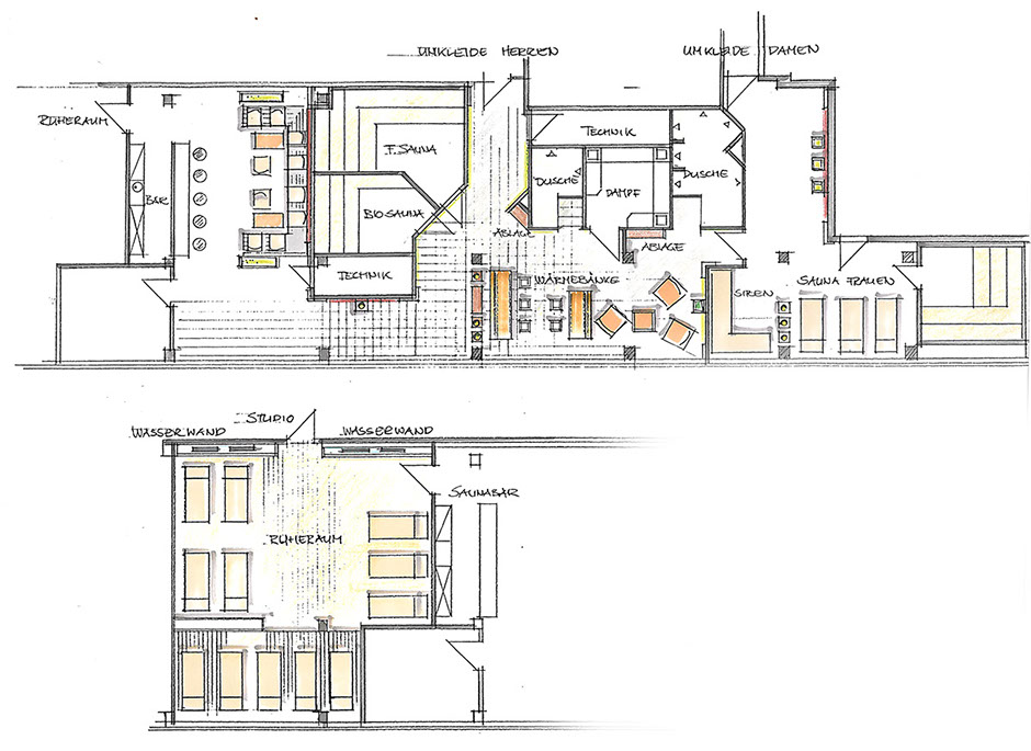
Wellverde schafft für Ihre  Fitness und Ihr  Wohlbefinden Räume in denen Sie aktiv Ihre Lebensqualität steigern, oder einfach nur Relaxen und sich Wohlfühlen können. Durch unsere langjährige Erfahrung und unter Einbindung von Experten aus dem  Health & Fitness Bereich, können wir Ihnen einen Ort Schaffen, der positiv Emotional zum Verweilen begeistert und ein weiterer Baustein für Ihre Balance ist.Ob Fitnesskette, Individualisten, Medical-SPA oder Physiotherapie, Wellverde realisiert Ihre Wünsche.

 

<< zurück

© WELLVERDE GMBH 2014

IMPRESSUM