LA VIDA SPORTS

HEALTH & FITNESS

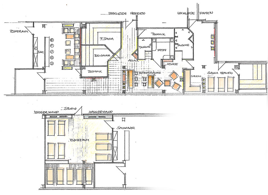
CLUB SELECT FITNESS WIEN

HEALTH & FITNESS

ZEN SPORTS

HEALTH & FITNESS

FIT IN

HEALTH & FITNESS

HEALTH & FITNESS

Wellverde crea zonas de entrenamiento y cuartos destinados al bienestar del cuerpo, en los que su calidad de vida aumenta activamente o en los que podrá relajarse y sentirse bien. Gracias a nuestros años de experiencia y a profesionales del campo de la salud y el bienestar, somos capaces de crear lugares, en los que se sentirá profundamente positivo y deseará quedarse para encontrar su equilibrio emocional. No importa si lo que busca son gimnasios, spas médicos o de fisioterapia, en Wellverde nos encargamos de realizar sus sueños.

 

<< retroceder

LADY FITNESS

HEALTH & FITNESS

FAMILY SPORTS

HEALTH & FITNESS

© WELLVERDE GMBH 2014

AVISO LEGAL