WELLNESS &
DAY-SPA
HOTELLERIE &
GASTRONOMIE
HEALTH &
FITNESS
Wellverde creates fitness and well-being rooms in which you can actively increase your quality of life, or just relax and feel at ease. Through our many years of experience, together with the involvement of experts from the Health & Fitness sector, we create spaces that inspire positive emotions, places to relax and rediscover your balance. Whether for fitness chains, individualists, Medical SPA or physiotherapy, Wellverde realises your desires.
OTHER
PROJECTS
PRIVATE
HOME
Check-in area
Fit in Karlsruhe
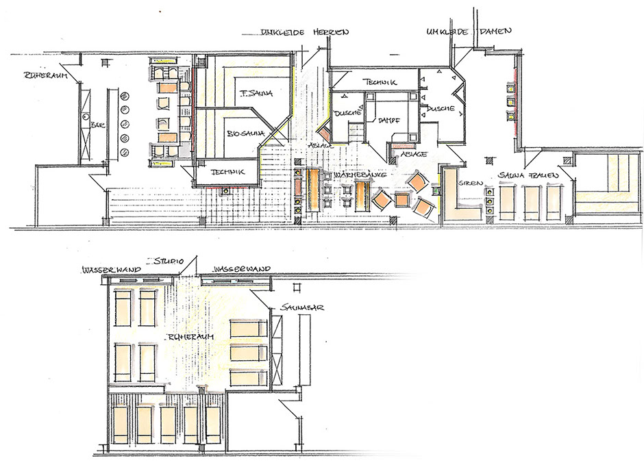
2D planning
Fit in Karlsruhe
Sauna area with Kneipp zone
Fit in Karlsruhe
3 - 3
<
>
<< back
© WELLVERDE GMBH 2014
IMPRINT